2 BedDetachedBungalow
Key Features
- Bay fronted character bungalow
- Set back from the road on a large plot
- Sought after area of Copthorne
- Spacious light living room
- Generous kitchen/dining room
- Garage with driveway to front for numerous vehicles
Overview
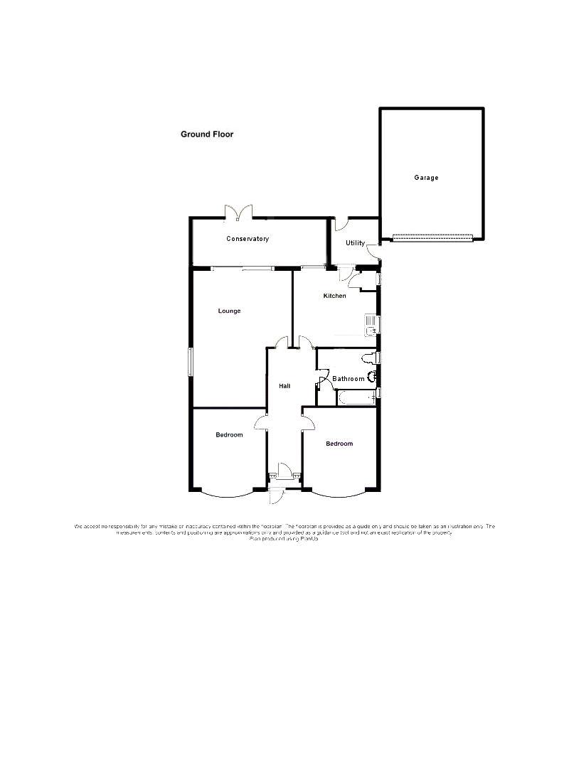
A substantial two bedroom detached bungalow in the popular and sought after area of Copthorne close to the hospital, shops and bus routes. Set back from the road this double bay fronted property has a most impressive aspect with a generous well maintained front garden. In brief the property benefits from gas central heating, UPVC double glazing, entrance hallway with parquet, spacious light living room, generous kitchen/dining room with pantry, conservatory overlooking rear garden, utility room, two double bedrooms, family bathroom, garage, enclosed private garden to rear and long driveway to front for ample parking. The property has no upward chain and must be viewed to appreciate the spacious accommodation on offer.
Details
Entrance Porch
Hallway
Living Room20' 3'' x 14' 5'' (6.17m x 4.40m)
Kitchen/Breakfast Room12' 6'' x 12' 2'' (3.80m x 3.71m)
Conservatory20' 3'' x 9' 11'' (6.16m x 3.03m)
Utility room4' 11'' x 9' 11'' (1.5m x 3.01m)
Family Bathroom
Bedroom One11' 9'' x 10' 8'' (3.59m x 3.25m)
Bedroom Two11' 10'' x 10' 8'' (3.6m x 3.25m)
Garage20' 4'' x 13' 9'' (6.2m x 4.2m)
Agents NoteThe bungalow was originally built as three bedroom bungalow, The living room has been opened up and knocked through to allow a large living space however there could be an easy conversion back to three bedrooms if required.
NOTEThe agent has not been able to verify the availability and nature of services. All interested parties should obtain verification through their solicitor or surveyor before entering a legal commitment to purchase.
Please note that our room sizes are quoted in metres to the nearest one tenth of a metre on a wall to wall basis. The imperial equivalent (included in brackets) is only intended as an approximate guide. We have not tested the services, equipment or appliances in this property; also, please note that any fixture, fittings or apparatus not specifically referred to in these details, is not included in the sale, even if they appear in any internal photographs. You are advised to commission appropriate investigations and ensure your solicitor verifies what is included in the sale, before entering a legal commitment to purchase. While we try to make our sales details accurate and reliable,Spencer & Jakeman does not give, nor does any Officer or employee have authority to give, any warranty as to the accuracy of any statement, written, verbal or visual. You should not rely on any information contained in these details when deciding whether to view or purchase.




















